
【编者按】为更高质量推动旧住房更新,传承修缮匠心技艺,守护城市民生福祉,“房可圆”编辑部推出【住房更新,匠心传承】主题专栏,围绕住房更新工作抓示范、树典型。今天请看第四十三期:历史街区的未来样本,东湖路上的“全龄游乐园”


航拍图 © 刘宇扬建筑事务所

© 党航

© 党航
面对 2#楼特殊类装修报批要求,团队与结构顾问合作,精准界定了拆除与保留范围,依据房屋质量检测报告,对保留的结构框架加固,并利用旧楼板支撑浇筑新楼板,在不增加面积的前提下提升空间品质。2#-1 建筑立面以 3.5 米开间呼应周边肌理,内部可自由划分。

© 党航

© 党航

© 党航
2#-2 沿街体量严格遵从宗地图边界:范围外拆除以释放前场,利用范围内保留的结构柱网,结合场地几何生成平缓的立面曲线,柔化周边环境对话关系。屋顶增设钢木覆膜顶棚,形成半开放空间,呼应 “From farm to table” 理念,为市集、展览、实验性种植提供多样可能。

© 党航

© 党航
设计通过“考现”梳理,唤醒了场地作为 1950 年代托儿所活动空间的记忆,并融入 Aldo van Eyck 的社区游乐场与 Cedric Price “Fun Palace” 的实验性构想,旨在打造一个融合餐饮、零售、创意与快闪的“全龄游乐园”。

© 党航

© 党航

© 党航
“呼吸”具化为庭院系统:围绕 2#楼清拆出约 800 平方米的开放空间,形成南北两院。南院(约 400㎡)由 2#楼、3#楼及 BLAZ 洋房围合。拆除隔墙后,洋房的历史立面成为庭院的自然边界。3#楼原始进深不足,经调整至约 6 米以适配餐饮需求,其北端切角与 2#楼形态呼应,三侧立面打开后形成了连接庭院的活力转角。北院(约 300㎡)划分为公共前院与私密后院,以一个透明玻璃盒子轻巧区隔,结合未来运营需求,清晰区分使用场景。

© 党航

© 党航
“游乐”由立体游廊系统实现:空中连廊与钢构楼梯将庭院、平台与屋顶串联为可循环的立体场所。路径从南庭院旋转楼梯开始,经连廊穿越 2#楼,抵达北侧休息平台与屋顶花园,最终从南侧回到地面,形成一段连贯的探索体验。

© 党航

© 党航

© 党航
本项目是一次贯穿“全尺度”与“全过程”的设计实践。作为全程设计及运营顾问,团队不仅完成了园区主体(2#楼)的建筑、室内与景观设计,还统筹协调了 1#楼历史洋房群、3#楼沿街体量及 BLAZ 相邻界面改造,确保园区在动线、体量与风貌上的整体性,从街区关系研究延伸至建筑、室内、景观及细部家具,践行 “From spoon to city” 一体化理念。

© 党航

© 党航
东湖路 30 号通过“减量”与“连接”,将封闭存量角落转化为向城市开放、充满弹性的活力复合场所。目前项目临近完工,沿街主力商户已陆续开业,园区进入招商收官与装修收尾阶段。

© 党航

© 党航


一层平面图 © 刘宇扬建筑事务所

二层平面图 © 刘宇扬建筑事务所

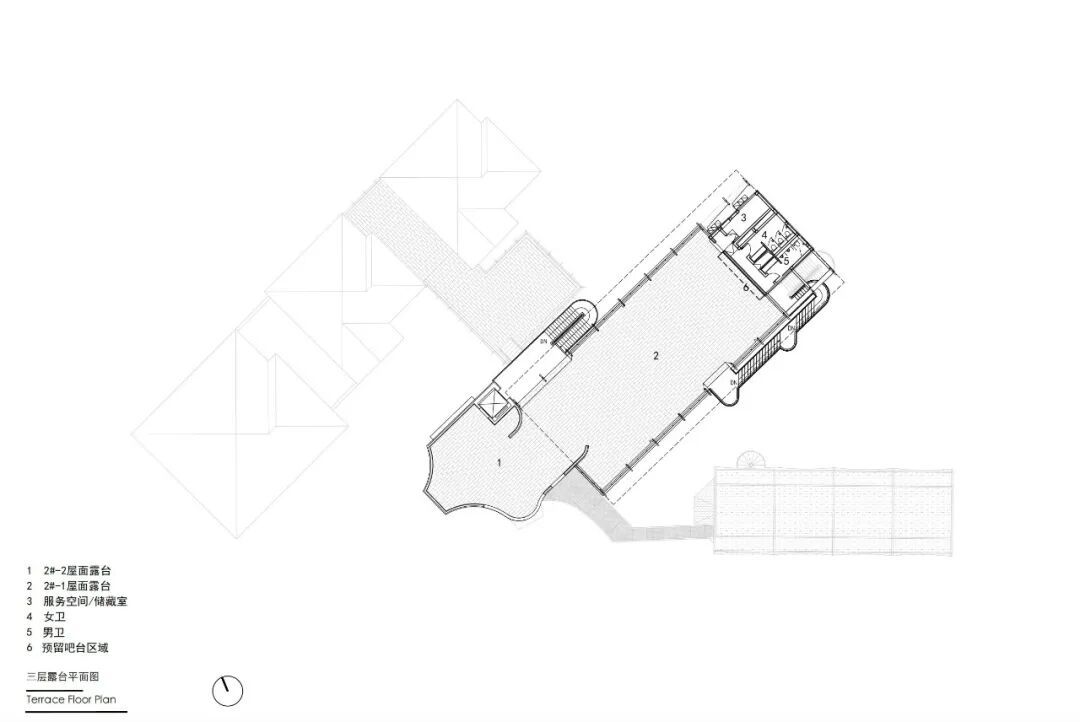
三层平面图 © 刘宇扬建筑事务所

屋顶平面图 © 刘宇扬建筑事务所

立面图及剖面图 © 刘宇扬建筑事务所

墙身大样图 © 刘宇扬建筑事务所

给施工单位的检测拆除示意 © 刘宇扬建筑事务所

清拆图 © 刘宇扬建筑事务所

东湖路30号场地肌理演变 © 刘宇扬建筑事务所

东湖路历史沿革 © 刘宇扬建筑事务所

东湖路与安福路对比 © 刘宇扬建筑事务所

“from farm to table” 概念图 © 刘宇扬建筑事务所

2# 楼及园区整体钢木结构草图 © 刘宇扬建筑事务所

ALYA 杨浦滨江项目照片与东湖路草图 © 刘宇扬建筑事务所
资料:刘宇扬建筑事务所
供稿:市修建协会历保专委会 市住宅(修缮)中心
