我的位置: 上观号 > 上海嘉定 > 文章详情

丰庄路、丰庄北路2个小区即将加装电梯→

转自:上海嘉定 2025-10-17 17:01:47

丰庄路、丰庄北路

又有两个

既有多层住宅将加装电梯

一起来看↓

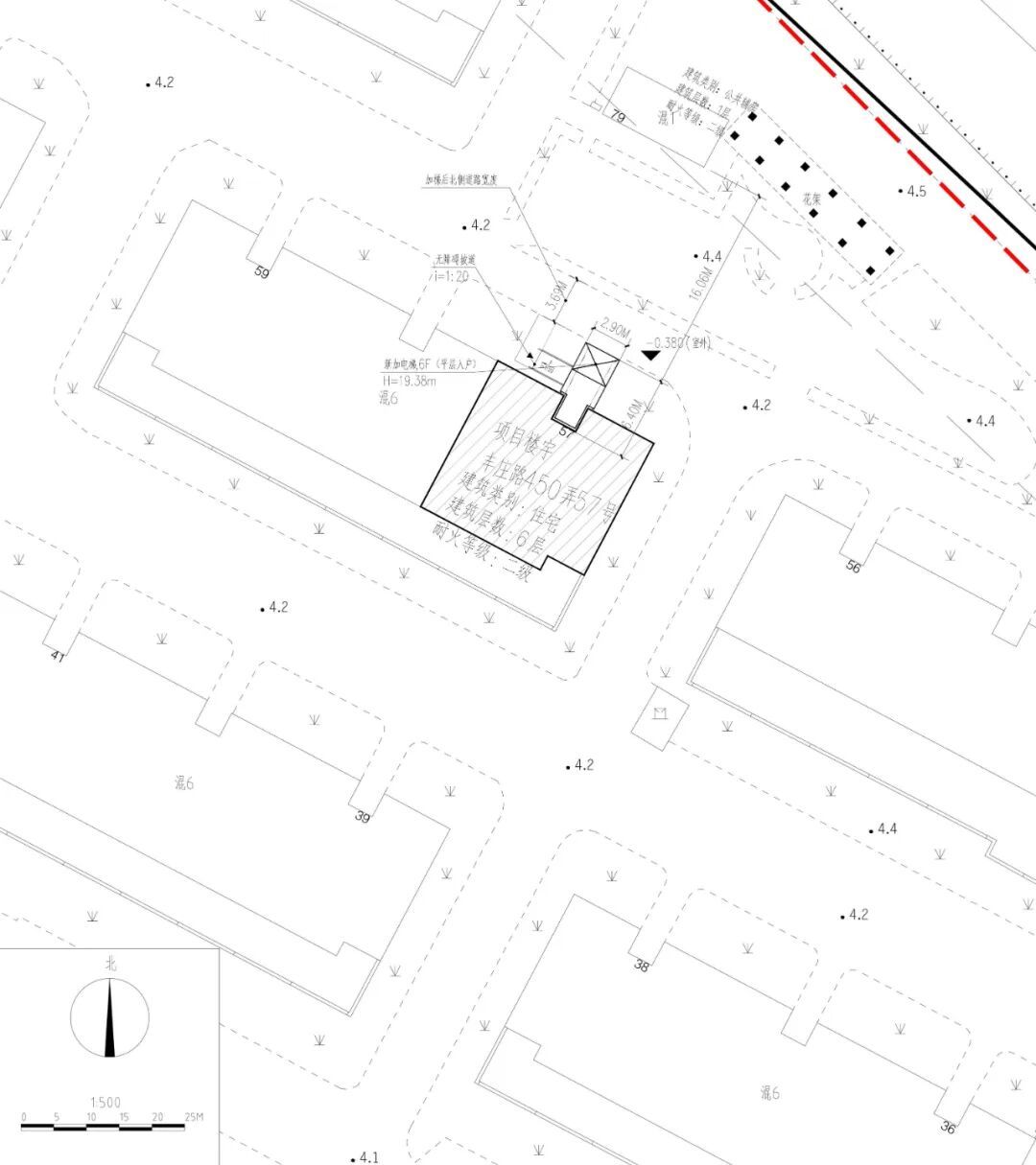
上海市嘉定区丰庄路450弄57号

既有多层住宅加装电梯项目

建设单位

上海市嘉定区丰庄一村第六届业主委员会

建设项目地址

上海市嘉定区丰庄路450弄57号

平面图

用地性质

居住用地

效果图

建设工程性质

加装电梯工程

建筑面积

98.16平方米

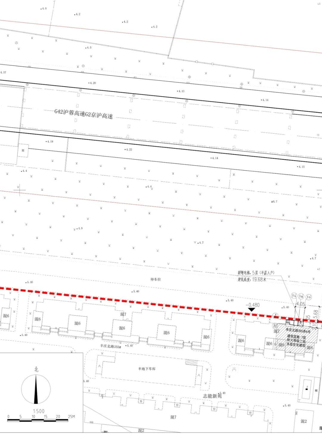
上海市嘉定区丰庄北路355弄

6号既有多层住宅加装电梯项目

建设单位

上海市嘉定区真新街道虬江社区居民委员会

建设项目地址

上海市嘉定区丰庄北路355弄6号

平面图

用地性质

居住用地

效果图

建设工程性质

加装电梯工程

建筑面积

45.00平方米