
“浦东新区妇幼保健院(妇幼保健中心)南院一期新建工程”
规划设计方正在公示中,来看详情↓

建设单位
上海市浦东新区卫生财务资产与工程安全事务中心
建设工程名称
浦东新区妇幼保健院(妇幼保健中心)南院一期新建工程
建设项目地址
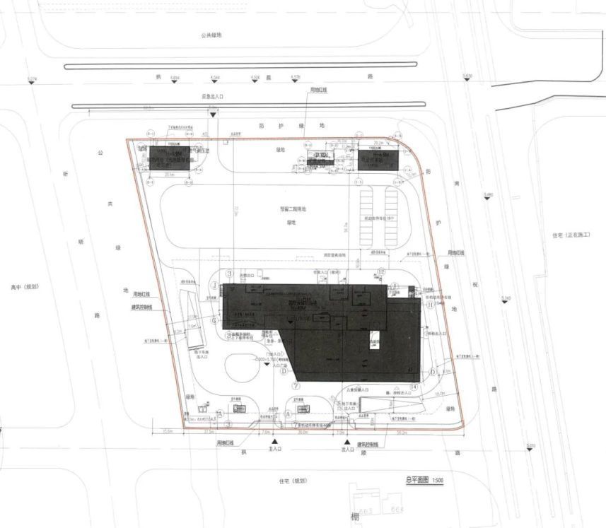
上海市浦东新区民乐大居PDS3-0201单元J03-03地块
建设用地范围
东至南祝路、南至拱顺路、西至听晓路、北至拱晨路
建设用地性质
C5(医疗卫生用地)
建设工程性质
医疗建筑工程
公示图

主要经济技术指标
建筑用地面积:20375.46㎡
总建筑面积:38952㎡
地上建筑面积:20590㎡
地下建筑面积:18362㎡
计容建筑面积:20375㎡
容积率:1.0
意见反馈
公示期限:2024年8月13日至2024年8月22日
本次公示由浦东新区规划和自然资源局和惠南镇共同组织,项目单位配合。
公示采取网上和现场同步公示的方式。
现场公示地址:惠南镇政府及项目建设基地现场围墙等附近
公示网址:http://www.pudong.gov.cn/gtj/
本次公示采取书面信函方式听取公众意见
反馈意见截止日期:2024年8月29日前,信件以寄出邮戳为准。
收集意见的信函请寄:浦东新区锦安东路475号新区规划和自然资源局,邮编:201204。请在信函封面上注明“浦东新区妇幼保健院(妇幼保健中心)南院一期新建工程(设计)”方案公示意见。也可到项目所在地惠南镇反映。